Toimitilan Rauhankatu 16 tiedot:

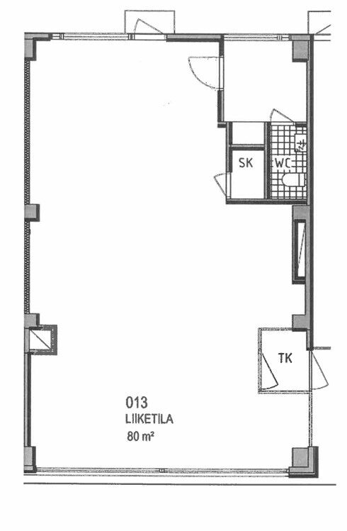
Vuokrataan moneen käyttöön soveltuva valoisa ja näkyvä katutason liiketila hyvällä sijainnilla, vain yhden korttelin päässä Vaasan torilta. Ison avoimen tilan lisäksi huoneisto käsittää vessan, keittiön sekä varaston. Tilaan on asennettu myös viilentävä ilmalämpöpumppu. Tilan edessä on tunnin ilmainen kadunvarsipysäköinti (p-kiekolla).

Kuva toimitilasta
  • Osoite: Rauhankatu 16, 65100 Vaasa
  • Tyyppi: Liiketila, Toimisto
  • Pinta-ala: 80,00m2
  • Kauppatapa: Vuokrattavana
  • Vuokrattavana
  • Hinnan lisätiedot: Ei alv tietoa